Hydraulic Drafting Services
Meter Built offers expert Hydraulic Drafting & Plumbing BIM Services (LOD 100-400), covering water supply, sanitary, and firefighting systems.
Expert Hydraulic Drafting and Plumbing BIM Services
Meter Built provides highly professional Hydraulic Drafting Services (plumbing and firefighting services) for residential, commercial, hospital and different applications. Our plumbing design services are committed to provide accurate and highly effective plumbing engineering solutions in adherence with industry standards. We have experienced plumbing engineers, who can design the inside and outside plumbing systems of building.
Maximizing Value with Advanced Hydraulic BIM and Drafting
In our Hydraulic BIM Services and plumbing system designs, we add details from LOD 100 to LOD 400, to assist MEP contractors to make informed decisions. We offer 3D, 4D and 5D BIM services as per the requirement of the clients. BIM services give the complete report of the construction cost, logistics and scheduling. Our BIM experts improves the coordination among the various disciplines including architecture, structural and mechanical.
We take responsibility of working on your project by eliminating your overhead employee cost, project management cost and maximize your profits. You can outsource your MEP Plumbing Drafting Services without worrying about your fixed cost, instead focus on your core competencies.
- Drawing of domestic water supply system
- Sanitary system drafting
- Riser Diagrams, isometric plumbing drawings and schematics
- Drafting plumbing pipe networks
- Shop and as -built drawings
- Piping construction and CAD designs
- Domestic and commercial Cold and Hot Water System layouts
- Plumbing diagram and standard plumbing drafting
Meter Built Expertise
Our expertise covers end-to-end hydraulic drafting: Sanitary, Tradewaste, Rainwater, Hot/Cold Water, Fire Protection (hydrant/hose reel), Compressed Air Gas, and detailed Shop/As-Built Drawings. We ensure project integrity by detecting and solving clashes.
Sanitary and drainage drawings
Tradewaste system drawings
Rainwater and surface water drainage drawings
Domestic cold and hot water system layouts
Domestic cold and hot water system layouts
Water supply and distribution plan drafting services
Fire hydrant and hose reel drawings
Sleeve, inserts, hanger drawings
Plumbing shop/as built drawings
Detecting and solving clashes
Why choose Meter Built?
It is worthy enough to be mentioned that we are not only restricted to these Plumbing design services. All kind of customized problems are welcomed whole heartedly by our experts as it let them prove their skill and expertise. The innovative approach towards a problem is one of our biggest strengths.
Cost Effective Pricing
Get premium quality service without the premium price tag. Maximize your budget.
Timely Delivery
Projects delivered on schedule, ensuring your construction timelines are met.
Regular site inspection
On-site checks guarantee drawings accurately reflect field conditions and progress.
Quality Assurance
Rigorous checks and standards guarantee precise, reliable, and compliant drawings.
Certified Professional
Work handled by accredited and highly qualified plumbing engineers and drafters.
Supportive Consultancy
Expert guidance and responsive support from project start to final execution.
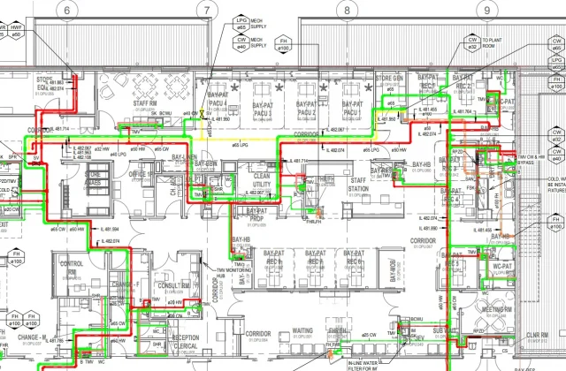
Hydraulic (Sanitary and Water) Drafting samples
Review our projects showcasing precise domestic water supply, sanitary drainage, riser diagrams, and detailed shop drawings. See how our commitment to quality drafting ensures clash-free execution for your project.
FAQs
Find quick answers to common questions about our services, process, and support.
What types of hydraulic drafting services does Meter Built provide?
We offer a full range of hydraulic drafting services, including domestic water supply system drawings, sanitary system drafting, riser diagrams, isometric plumbing drawings, plumbing pipe network drafting, shop and as-built drawings, and CAD-based piping construction designs.
Do you provide services for both residential and commercial projects?
Yes. We work across residential, commercial, hospital, industrial, and other applications, delivering accurate plumbing and firefighting drafting solutions tailored to each project.
What expertise does your team have in plumbing design?
Our experienced plumbing engineers specialize in designing both internal and external plumbing systems. We provide engineering solutions aligned with industry standards to ensure safety, efficiency, and long-term performance.
How does BIM help improve my project?
BIM enhances coordination across all disciplines—architecture, structural, mechanical, and MEP—reducing clashes, minimizing delays, and ensuring smoother construction. It also provides precise cost and schedule insights.
Get in Touch
Have questions or ready to start your project? Reach out—we’re here to help!
